Das Goethe-Quartier - Aushängeschild Ihres Unternehmens

Anhang 1 von 7

Objektdaten

Objekt-ID
801/1

Objekt-Typ
Bürohaus

Mieterprovision
provisionsfrei

Lage

Um Google Maps-Einbindungen nutzen zu können, stimmen Sie bitte dem Austausch Ihrer Daten zu, indem Sie "Google Maps" in den Einstellungen der Cookies erlauben.

Die zentrale Lage in kurzer Entfernung zur Innenstadt und die ausgezeichnete Anbindung an den ÖPNV- und Individualverkehr bringt dem Standort den Vorteil kürzester Wege. Über die sehr gut ausgebaute B37, eine der Hauptausfallstraßen Richtung Mannheim, ist der Autobahnanschluss auf die A5 und 656 innerhalb kürzester Zeit erreicht. Der Hauptbahnhof Heidelberg befindet sich ca. 1,2 km vom Gebäude entfernt und kann fußläufig oder bequem mit den ÖPNV (ca. 200 m Entfernung) in kurzer Zeit erreicht werden. Das Goethe-Quartier selbst verfügt über eine hauseigenen Tiefgarage mit ca. 330 PKW-Abstellplätzen und einem Fahrrad-Stellplatz für bis zu 500 Rädern. Eine optimale Work Life Balance ist durch eine vielfältige Infrastruktur im und rund um das Quartier wie moderne Shopping-, Gastronomie- und Nahversorgungskonzepte gewährleistet.

Energieausweis

Gebäudetyp
Büro/Praxen

Ausstattung / Merkmale

  • Flexibilität in der Planungsphase
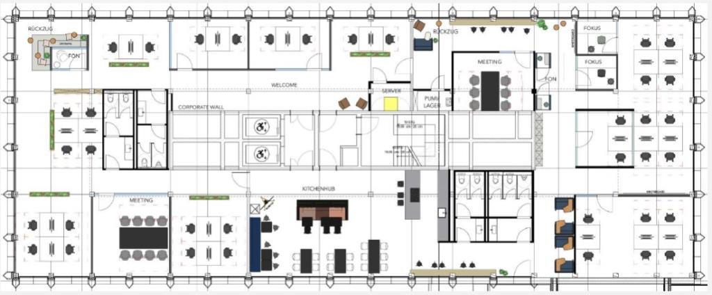
  • Durchdachte, intelligente New-Work Arbeitswelt
  • Dachterrasse als repräsentativer Aufenthaltsort für Mitarbeiter und Kunden
  • Moderne Technik z.B. leistungsstarke Glasfaser Technologie
  • Heiz- und Kühlsegel
  • elektrische Außenjalousien
  • Hauseigene Tiefgarage mit ca. 330 Stellplätzen
  • ca. 500 Fahrrad-Stellplätze

Objekt-Beschreibung

Das Goethe-Quartier - Aushängeschild Ihres Unternehmens

Machen Sie das Goethe-Quartier mit seiner nachhaltigen und ökologischen Holzhybrid Bauweise (Stahlbeton/Holz ) mit sichtbaren Elementen im Innenraum und seiner geradlinig, zeitgemäßen Fassade in ortsüblicher, konventioneller Kolorierung zum Aushängeschild Ihres Unternehmens. Mit seiner beeindruckenden Architektur und der hochwertigen Innenausstattung ist hier beste Möglichkeit für die Adressbildung durch Single Tenant gegeben. Das Büroprojekt bietet bis zu 4.000 m² Bürofläche in 6 Geschossen, teilbar ab 450 m² und bieten für jeden Nutzer die passende Größe.

Eines haben alle Büros gemeinsam: Hochwertige Gebäudestandards für eine effektive Büroarbeit in einem professionellen Arbeitsumfeld. Neben modernster Ausstattung( bspw. Kühl-Heizsegel, Glasfasertechnologie, aussenliegender elektrischer Sonnenschutz, Dachterrasse als repräsentativer Aufenthaltsort für Mitarbeiter und Kunden) sorgen helle Räume für eine behagliche Arbeitsatmosphäre.

Kontaktdaten / Ansprechpartner

Online-Formular für Ihre Direktanfrage

* Zur Bearbeitung Ihrer Anfrage müssen alle mit einem Sternchen markierten Felder ausgefüllt werden.

Strategpro Wohnen GmbH
Hauptstraße 161
68259 Mannheim

info@strategpro.de
+49 621 729 265 - 0