Repräsentative Bürofläche mit herrlichem Blick auf den Neckar aus erster Reihe

Anhang 1 von 9

Objektdaten

Objekt-ID
900/1

Objekt-Typ
Bürohaus

Kaltmiete
12,90 €

Nebenkosten
3,25 €

Mieterprovision
provisionsfrei

Lage

Um Google Maps-Einbindungen nutzen zu können, stimmen Sie bitte dem Austausch Ihrer Daten zu, indem Sie "Google Maps" in den Einstellungen der Cookies erlauben.

Die Büroflläche liegt im Osten Heidelbergs im Stadtteil Ziegelhausen. Die Bushaltestelle "Stiftsmühle" befindet sich in ca. 200 m Entfernung. Von hier verkehren die Linien 34, 34E, 37E und E mit direkter Anbindung zum Heidelberger Hauptbahnhof (Fahrtzeit ca. 17 Minuten). Über die L 534 und B 37 sind die Autobahnanschlüsse der Bundesautobahnen A 656, A 5 und der A 6, ebenfalls bequem zu erreichen.

Energieausweis

Gebäudetyp
Büro/Praxen

Energieausweistyp
Verbrauch

Energieverbrauchskennwert
106,00 kWh/(m2·a)

Energieausweis wird bei Besichtigung vorgelegt

Ausstattung / Merkmale

  • Helle Büroräume
  • Hohlraumboden mit Bodendosen
  • IT-Verkabelung (CAT 7)
  • Bildschirmarbeitsplatzgerechte Beleuchtung
  • Außenliegender, elektrischer Sonnenschutz
  • Küche mit Aufenthaltsbereich
  • Großzügiger, repräsentativer Eingangsbereich
  • Parkähnlicher Außenbereich mit Terrasse
  • Außenstellplätze

Objekt-Beschreibung

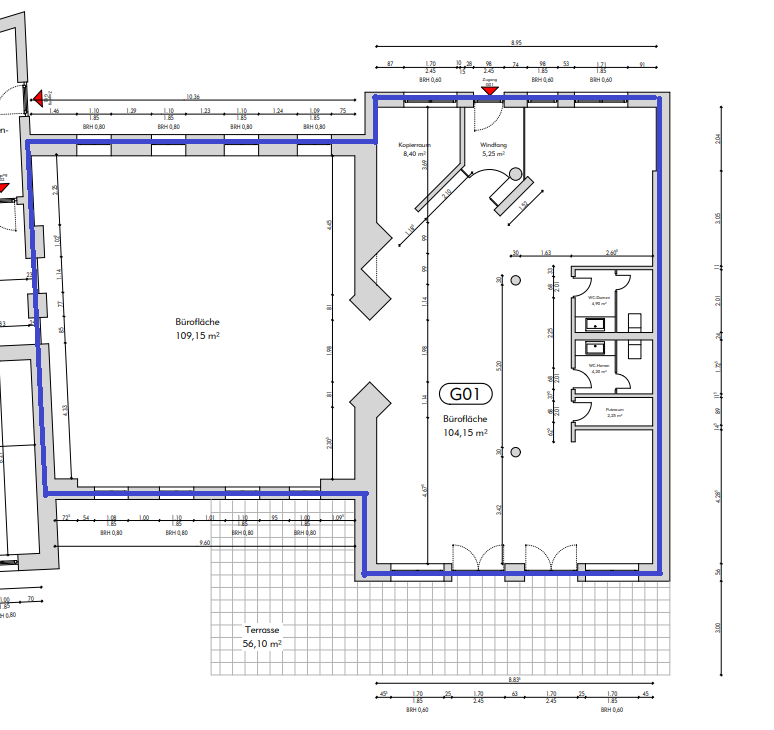
Die repräsentative Büroimmobilie bietet eine offene Arbeitsfläche von ca. 266 m² in erster Reihe am Neckar in Heidelberg-Ziegelhausen. Die Einheit umfasst zwei große, helle Räume, die eine flexible Gestaltung individueller Grundrisse ermöglichen und sich optimal an unterschiedliche Nutzungsarten anpassen lassen. Ob Büro, Praxis oder Yoga-/Pilatesstudio – hier arbeiten Sie in idyllischer Lage mit hohem Wohlfühlfaktor. Ein besonderes Highlight ist die exklusive, etwa 56 m² große Terrasse direkt am Neckarufer, die eine außergewöhnliche Aufenthaltsqualität schafft.

Eine kurzfristige Besichtigung ist jederzeit möglich.

Kontaktdaten / Ansprechpartner

Online-Formular für Ihre Direktanfrage

* Zur Bearbeitung Ihrer Anfrage müssen alle mit einem Sternchen markierten Felder ausgefüllt werden.

Strategpro Wohnen GmbH
Hauptstraße 161
68259 Mannheim

info@strategpro.de
+49 621 729 265 - 0