Repräsentative Einheit mit herrlichem Blick auf den Neckar aus erster Reihe

Anhang 1 von 12

Objektdaten

Objekt-ID
1045/1

Objekt-Typ
Bürofläche

Heizung
Zentral

Verfügbar ab
Nach Absprache

Lage

Um Google Maps-Einbindungen nutzen zu können, stimmen Sie bitte dem Austausch Ihrer Daten zu, indem Sie "Google Maps" in den Einstellungen der Cookies erlauben.

Die Einheit liegt im Osten Heidelbergs im Stadtteil Ziegelhausen. Die Bushaltestelle "Stiftsmühle" befindet sich in ca. 200 m Entfernung. Von hier verkehren die Linien 34, 34E, 37E und E mit direkter Anbindung zum Heidelberger Hauptbahnhof (Fahrtzeit ca. 17 Minuten). Über die L 534 und B 37 sind die Autobahnanschlüsse der Bundesautobahnen A 656, A 5 und der A 6, ebenfalls bequem zu erreiche. Gute Einkaufmöglichkeiten hat man in 5 Minuten zu Fuß erreicht.

Energieausweis

Gebäudetyp
Büro/Praxen

Befeuerung
Gas

Ausstattung / Merkmale

  • Ausstattung / Kategorie: standard
  • Linoleum
  • Heizungsart: Zentral
  • Freiplatz
  • Gartennutzung
  • Keine besonderen Merkmale vorhanden.

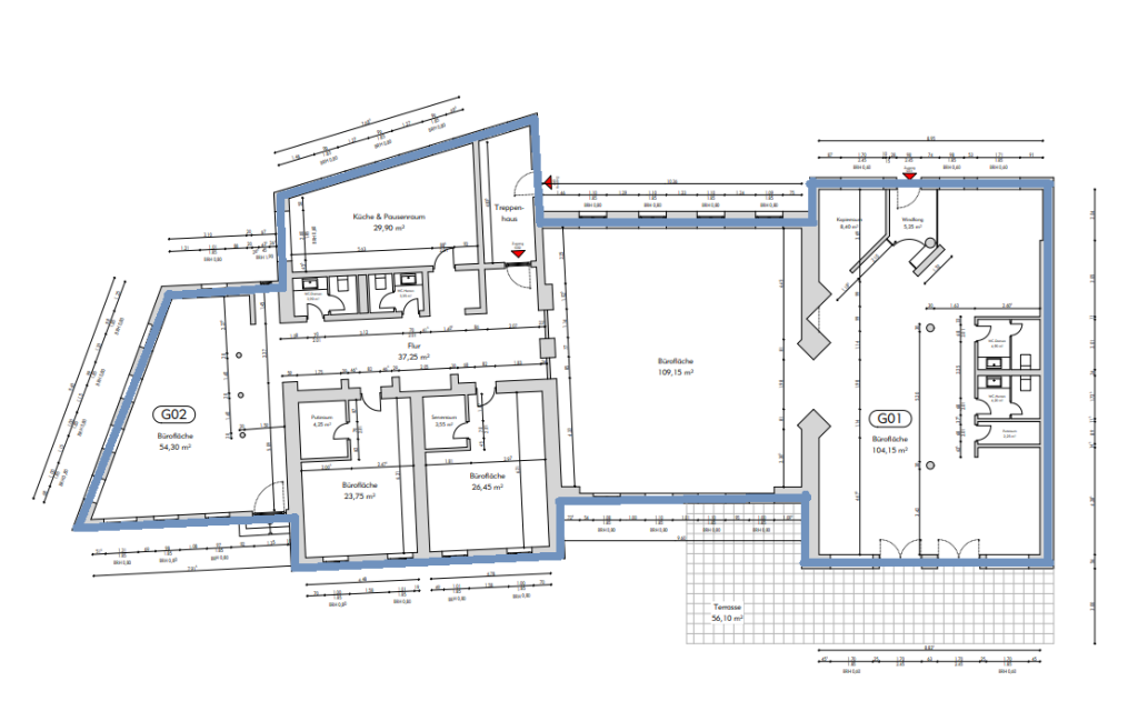
Objekt-Beschreibung

Gewerbeeinheit oder Wohntraum - Sie entscheiden.

Die gegenwärtig vermietete Gewerbefläche setzt sich aus insgesamt zwei miteinander verbundenen Einheiten zusammen. Dem Erwerber steht es frei, diese Einheiten entweder für berufliche Zwecke zu nutzen oder nach einer Nutzungsänderung Wohnzwecke zu verfolgen oder Wohnen in einer Einheit und Arbeiten in der anderen zu verbinden. Aufgrund des vorteilhaften Grundrisses ist eine flexible Planung und Umsetzung des Raumkonzepts möglich. Aktuell besteht die vereinte Einheit aus zwei großzügigen Gemeinschaftsräumen, zwei Einzelbüros sowie einer weitläufigen Teeküche; zudem sind auf beiden Seiten der Fläche sanitäre Anlagen vorhanden.

Kontaktdaten / Ansprechpartner

Online-Formular für Ihre Direktanfrage

* Zur Bearbeitung Ihrer Anfrage müssen alle mit einem Sternchen markierten Felder ausgefüllt werden.

Strategpro Wohnen GmbH
Hauptstraße 161
68259 Mannheim

info@strategpro.de
+49 621 729 265 - 0