Grundstück in sehr guter Lage in Mannheim-Neckarau

Anhang 1 von 11

Objektdaten

Objekt-ID
949/1

Objekt-Typ
Gewerbe

Fläche
903,00 m2

Kaufpreis
395.000,00 €

Lage

Um Google Maps-Einbindungen nutzen zu können, stimmen Sie bitte dem Austausch Ihrer Daten zu, indem Sie "Google Maps" in den Einstellungen der Cookies erlauben.

Das Grundstück befindet sich im Mannheimer Süden, im Stadtbezirk Neckarau, in hervorragend verkehrsgünstiger Lage. Über die B38a ist das Autobahnkreuz Mannheim (A656/A5/A6) in nur wenigen Minuten erreichbar. Dank der sehr guten ÖPNV-Anbindung gelangt man zudem schnell in die Mannheimer Innenstadt und zum Hauptbahnhof. Vom nahegelegenen Regionalbahnhof Neckarau beträgt die Fahrtzeit zum Hauptbahnhof lediglich rund 10 Minuten (Regionalbahn, Straßenbahnlinie 1, Bus).



Im direkten Umfeld stehen vielfältige Einkaufsmöglichkeiten für den täglichen Bedarf sowie ein breites gastronomisches Angebot zur Verfügung.

Energieausweis

Gebäudetyp
Grundstück

Ausstattung / Merkmale

  • Freiplatz
  • Keine besonderen Merkmale vorhanden.

Objekt-Beschreibung

Grundstück in sehr guter Lage in Mannheim-Neckarau

Grundstück mit einer Größe von ca. 903,00 m² in sehr guter Lage von Mannheim-Neckarau, derzeit unbebaut, zu verkaufen.
Zu diesem Grundstück liegt uns eine Bauvoranfrage zur gewerblichen Nutzung vor.
Gemäß Bebauungsplan gehen wir von einer möglichen gewerblichen Nutzung im Rahmen einer GFZ 0,6 (Geschossflächenzahl) und einer GRZ von 0,4 (Grundflächenzahl) aus.
Im Rahmen unserer Visualisierung können wir Sie auch in den Phasen 1-4 bis zur Baugenehmigung begleiten.
In diesen Fall tragen Sie lediglich die pauschalen Kosten in Höhe von von 10.000 EUR zzgl. gesetzlicher Mehrwertsteuer.

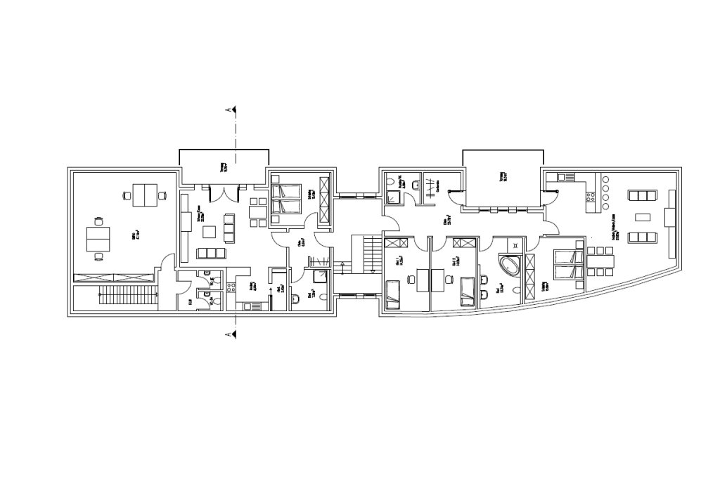
Nach Rücksprache mit dem zuständigen Bauamt ist grundsätzlich auch eine Wohnbebauung auf dem Grundstück möglich. Auch wenn diese Option derzeit noch nicht visualisiert wurde, unterstützen wir Sie hierbei selbstverständlich ebenso gerne.

Kontaktdaten / Ansprechpartner

Online-Formular für Ihre Direktanfrage

* Zur Bearbeitung Ihrer Anfrage müssen alle mit einem Sternchen markierten Felder ausgefüllt werden.

Strategpro Wohnen GmbH
Hauptstraße 161
68259 Mannheim

info@strategpro.de
+49 621 729 265 - 0